【小二讲装修】第74期 细节又创意的精装房
发布时间:2018-04-27 02:34:09 点击次数:1557次
精装高端的商品房,要有什么别出心裁的创意设计,或关注哪些细微人性化之处,才会让客户产生“哇哦,这就是我想要的家!”这种感觉。可以用智能家居解决吗?之前就听人讲过一些,当时体会不深。到自己实际跟客户接触的时候,才略有些体会。在此分享一些,希望对大家有帮助。
一、玄关
1.入口玄关流线布置

玄关的流线设计:家人和客人的流线分开,并设置不同的鞋柜收纳空间
玄关的作用非常大,进门的时候手上拎的、身上穿的都急于找个地儿放下来,尤其是下雨天的雨伞,以及婴儿车(这点常常被忽视),并且这些乱糟糟的私人用品尽量希望不被来访的客人看到吧。
例如下图:

图中左边是主人用的玄关,鞋子用品一大堆,但是藏得好,外面看不出乱。而客人用的玄关刚注重表现。总结一下就是,主人用玄关注意:收纳能力、能藏好不显眼,客人用玄关刚注重用材料、形态,灯光等,展示主人的情趣。

这个布置适合大玄关。对于较小的玄关,有如下方式缩减流线距离,使布局更紧凑。

2.玄关的洗手池
特别是对于养着宠物的主人来说,回家进门能洗手也是非当贴心的设计。在玄关设置一个有设计感的洗手池如下:

3.玄关的外套收纳空间内设置清洁装置。
理由不用说了吧,从外面回到家中脱下的外套避免污染室内,并能除去讨厌的静电。

大概说一下,这个是衣柜衣橱用的xiaoxingw空气清洁器,基本是灰尘感应启动的,平时待机状态。
二、客厅

1.电视墙后面设置储存空间
客厅说乱七八糟都可以很快的收纳到里面,非常便利。突然来客人的时候也能很快的收拾屋子。
平面如图:

效果图大改是这样:

2.在玄关和客厅之间设置过渡的收纳空间
自己收拾过就明白收纳空间简直是家的救星啊。在日本的标准,收纳空间占到总面积的10%到20%
好的收纳空间能创造出非常令人感动的效果来。

这样,进门的物品和客厅的各种杂物都可以非常方便的关到收纳空间里面

三.洗衣空间
能设计到洗衣空间的精装房才是令人感动的精装房。

设计的时候就充分考虑从洗衣到晾晒空间到折叠到收纳的流线,例如图中的布局,洗衣房连着阳台,洗完可以直接拿出去晒,收回来叠好直接放进服装的储藏室。
四、宠物空间
随着养宠物的家庭越来越多,如果设计者能够贴心的为宠物设计好空间,必定会让购买者感动不已。
对于宠物,尤其是宠物狗来说,我们需要了解它们的心理。小狗喜欢和人待在一起,但是也需要有自己的空间。在自己的空间里又能够同时看到主人的活动,这样小狗会觉得安心。

比如图中这样,在客厅附近给狗活动的角落,在卧室附近布置狗的窝。让小狗能够时刻感受到主人又能够保持一定的距离,是非常贴心的。

五、用好每一寸空间
户型大或小都没有浪费空间的理由。高效的空间利用方式和组织方式,对细致到每一寸空间的有效利用都能够大大丰富家庭生活。家庭娱乐和家务空间的有效结合也是非常考验设计师的,也非常能够说服客户。
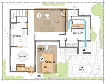
这里用一个简单的案例来说明:

这个平面看上去非常简单,让我们看看它对空间进行了哪些细致的考虑:
1.利用楼梯下的空间作为兴趣空间和操作台。

一般的想法,楼梯下基本是作为仓库来使用。但是在这个户型中,恰好楼梯侧面对着客厅,在这个小空间里布置桌子能够让人在融入客厅活动的同时又保持自己空间的私密感,能够让妈妈做一些简单的手工作业或是作为孩子的作业台。
2.榻榻米下的收纳抽屉

这点已经非常普及了。如果家里有日式榻榻米的话不妨尝试,收纳能力非常强。需要注意的是如果设置抽屉的话,对于榻榻米的结构需要加强,否则荷载导致变形的话抽屉会有打不开的风险。
3、家务间设置:在布局上让厨房和洗衣房离得近一些能够大大提高家务效率。

也就是家务空间集中布置。在厨房附近布置洗衣房,做饭的当儿衣服也洗好了,能够同时兼顾不同的家务劳动,同时可以更方便的照顾到孩子的淋浴等,非常方便。

